Trilocale in vendita

Gatteo, Via Forlì - Gatteo A Mare
€ 199.000
3 locali 3 locali
66 Mq 66 Mq
1 bagno 1 bagno

Trilocale in vendita

Gatteo, Via Forlì - Gatteo A Mare

Descrizione annuncio

GATTEO MARE

Nel cuore di Gatteo a Mare, a soli 200 metri dalla spiaggia, proponiamo in vendita un comodo appartamento, ideale per chi desidera vivere vicino al mare. Situato in un condominio recentemente ristrutturato esternamente, l'immobile offre un ampio terrazzo abitabile, perfetto per momenti di relax all'aperto.

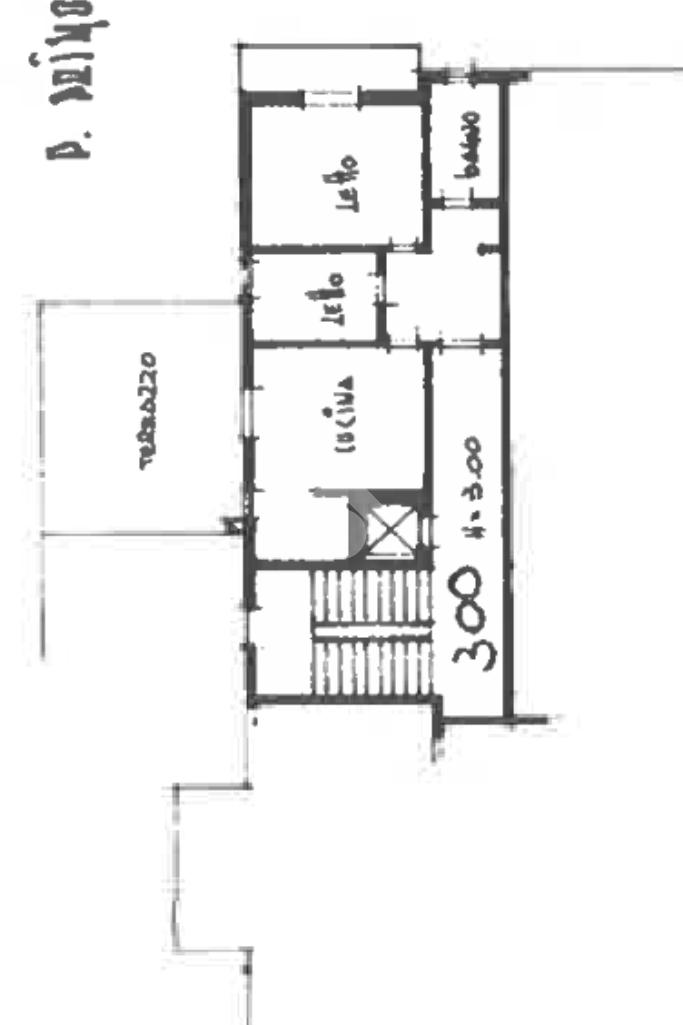
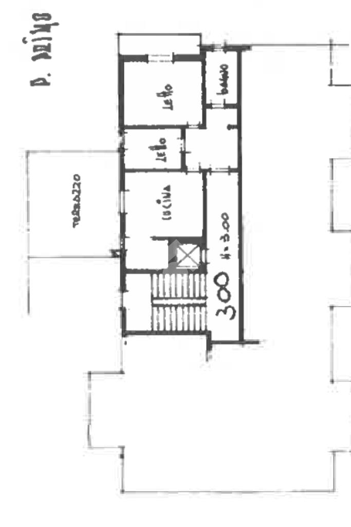
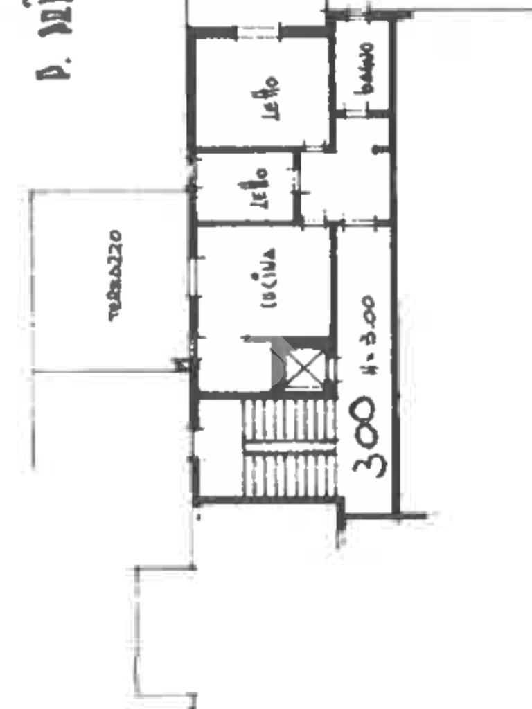
La soluzione si trova al primo piano ed è presente l’ascensore. Entrando in casa veniamo accolti da un ingresso che ci conduce alle varie stanze.

Soggiorno angolo cottura con porta finestra che ci permettere di accedere al terrazzo, antibagno e ampio bagno finestrato, una camera da letto matrimoniale con balcone ed una seconda cameretta.

La proprietà include una cantina privata, utile per riporre oggetti personali o attrezzature da spiaggia.

L'appartamento è dotato di riscaldamento autonomo e aria condizionata.

Possibilità di parcheggiare l'auto nella corte condominiale.

Una soluzione ideale per chi cerca una residenza al mare con tutte le comodità a portata di mano.

CHIAMACI per ulteriori informazioni o per fissare un appuntamento allo 0547.85938 oppure inviaci una mail e sarai ricontattato al più presto.

Mostra tutto

Nelle vicinanze

Trasporto pubblico Trasporto pubblico
Gatteo a Mare
Gatteo a Mare
390 m
stazione di Bellaria
stazione di Bellaria
3,0 Km
Gatteo a Mare - G. Cesare
Gatteo a Mare - G. Cesare
200 m
Trieste
Trieste
280 m
Ricariche auto elettriche Ricariche auto elettriche
Hotel Capitol
270 m
Centro Commerciale Romagna Est Iper
1,5 Km
Hotel Valverde & Residenza
1,9 Km
Scuole Scuole
Scuole
780 m
Polo Scolastico Villamarina
1,3 Km
Farmacia Farmacia
Farmacia
290 m
Farmacia Centrale
1,1 Km
Iper Farma
1,3 Km
Farmacia Tonini
2,7 Km
Supermercati Supermercati
Conad City
600 m
Supermercati
1,0 Km
D-piu
1,0 Km
Svelto A&O
1,1 Km
Iper
1,3 Km
Negozi Negozi
Negozi
340 m
Conad
610 m
Poseidonia
1,1 Km
Creme Caramel
1,1 Km
Ollipois
1,2 Km
Bar Bar
Bar-Caffetteria Me Gusta
220 m
Bagno Paradiso 25
280 m
Bagno Walter
330 m
Bar Mercedes
730 m
Tequila
970 m
Ristoranti Ristoranti
AcquaeFarina
420 m
Santa Lucia Beach Bar
590 m
Piadina da Cristina
620 m
Bagno Ines
750 m
Ristorante Pizzeria Oasi
820 m
Mostra tutto

Caratteristiche

Rif.:
61120367
Piano:
1 di 5 con ascensore (Piano basso)
Balconi:
1
Terrazzi:
1
Camere da letto:
2
Arredamento:
Completo
Mostra tutto
Prezzo Prezzo
€ 199.000
Rata mutuo Rata mutuo
€ 939 / mese
Spese annue Spese annue
€ 400
Proponi il tuo prezzoProponi il tuo prezzo

Classe Energetica

F
F
F
F
F
F
F
F
F
Anno di costruzione:
1970
Riscaldamento:
Autonomo
Tipo impianto:
A radiatori
Tipo alimentazione:
Metano

Ti interessa visionare l'immobile?

Fissa un appuntamento  Fissa un appuntamento

Richiedi informazioni

Clicca su Leggi per aprire l'informativa
* Questi campi sono obbligatori

Calcola il tuo mutuo

Semplice e senza impegno
Anticipo

( % )
Mutuo

( % )

pochi semplici passi

inserisci i tuoi dati
Questionario completato
Grazie per aver richiesto un appuntamento senza impegno con un nostro Consulente del Credito e Assicurativo.

Hai inserito correttamente tutti i dati necessari e a breve riceverai una e-mail con un link da convalidare per inviare i tuoi dati.
Affiliato
Myricae Mare Srl
Viale delle Nazioni, 100 47043 Gatteo (FC)

Il nostro staff


  • Lorenzo Rinaldi
    Affiliato

  • Vanessa Magnani
    Coordinatrice

  • Nicole Cucchi
    Coordinatrice

  • Samuele Garattoni
    Affiliato

  • Florida Hoxha
    Collaboratrice

  • Nicolò Lombardi
    Collaboratore

  • Alissia Tosi
    Collaboratrice
Viale delle Nazioni, 100 47043 Gatteo (FC)
Zona: Gatteo Mare-Villamarina-Valverde-Savignano Mare-Capanni-Cesenatico
Mostra su mappa
Orari: lunedì - venerdì 09.00/13.00 - 13.00/19.30; sabato 09.00/13.00 - 15.00/18.00
Affiliato
Myricae Mare Srl
Viale delle Nazioni, 100 47043 Gatteo (FC)

2025 Tecnocasa Franchising S.p.A. - P. IVA 08365160152 - Via Monte Bianco 60/A 20089 Rozzano (MI). Ogni agenzia ha un proprio titolare ed è autonoma. Privacy policy | Policy utilizzo | Cookie policy