Trilocale in vendita

Cesenatico, Via Eulero - Villamarina
€ 309.000
Prezzo aggiornato
3 locali 3 locali
84 Mq 84 Mq
1 bagno 1 bagno

Trilocale in vendita

Cesenatico, Via Eulero - Villamarina

Descrizione annuncio

CESENATICO - località Villamarina.

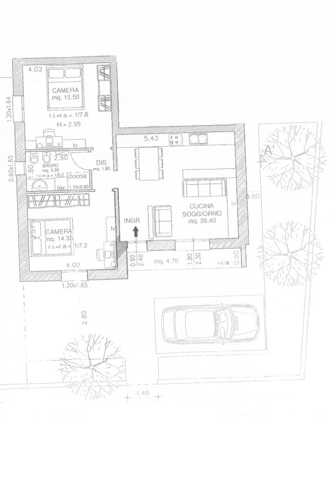
Nella zona residenziale di Villamarina di Cesenatico, proponiamo in vendita un appartamento sito in una palazzina in fase di ristrutturazione, che interesserà sia gli interni che gli esterni e garantirà una classe energetica A, assicurando efficienza e risparmio energetico.

Composta da sole quattro unità abitative, la soluzione è situata al piano terra, con ingresso indipendente che ci conduce a un giardino privato, ideale per momenti di relax all'aperto.

Entrando troviamo un open space dove ci accoglie un ampio soggiorno con angolo cottura di circa 30 mq, perfetto per chi ama gli spazi aperti e luminosi. La zona notte comprende due camere da letto matrimoniali, pensate per garantire comfort e tranquillità. Bagno finestrato e dotato di box doccia e attacco per la lavatrice.

La proprietà include anche un comodo posto auto di proprietà.

Possibilità di acquistare un garage e un'altro posto auto a parte.

La costruzione, prevista per Ottobre 2026, assicura standard moderni e finiture di qualità, rendendo questa soluzione abitativa ideale per chi cerca un ambiente accogliente e funzionale in una delle località più apprezzate della riviera romagnola.

Termo cappotto, riscaldamento a pavimento, impianto fotovoltaico, infissi in pvc (apertura anche a vasistas) zanzariere, tapparelle elettriche e frangisole motorizzati per alzanti scorrevoli ove previsti. Predisposizione per pompa di calore caldo/freddo.

Per maggiori informazioni è possibile visionare il capitolato direttamente in ufficio.

CHIAMACI per ulteriori informazioni o per fissare un appuntamento allo 0547.85938 oppure inviaci una mail e sarai ricontattato al più presto.

Mostra tutto

Nelle vicinanze

Trasporto pubblico Trasporto pubblico
Gatteo a Mare
Gatteo a Mare
430 m
Gatteo Mare Euclide
Gatteo Mare Euclide
550 m
Gatteo Mare
Gatteo Mare
590 m
Ricariche auto elettriche Ricariche auto elettriche
Hotel Capitol
760 m
Hotel Valverde & Residenza
1,3 Km
Centro Commerciale Romagna Est Iper
1,7 Km
Scuole Scuole
Polo Scolastico Villamarina
520 m
Scuole
1,5 Km
Farmacia Farmacia
Farmacia
590 m
Iper Farma
1,5 Km
Farmacia Centrale
1,8 Km
Ospedali Ospedali
Ospedale di Cesenatico
2,4 Km
Supermercati Supermercati
Supermercati
440 m
Conad City
750 m
Iper
1,5 Km
D-piu
1,6 Km
Svelto A&O
1,8 Km
Negozi Negozi
Negozi
450 m
Conad
750 m
Anastasia Boutique
1,1 Km
La Fiaccola
1,1 Km
Poseidonia
1,8 Km
Bar Bar
Bar Mercedes
510 m
Bagno Paradiso 25
790 m
Bar-Caffetteria Me Gusta
800 m
Bagno Walter
1,1 Km
Tequila
1,7 Km
Ristoranti Ristoranti
Bagno Ines
490 m
Ristoranti
510 m
Piadina da Cristina
620 m
Piadineria
1,1 Km
Chiosco Da Roberto
1,1 Km
Mostra tutto

Caratteristiche

Rif.:
61159232
Piano:
Terra con giardino di 2
Totale piani:
2
Posti auto:
1
Camere da letto:
2
Arredamento:
Parziale
Mostra tutto
Prezzo Prezzo
€ 309.000
Rata mutuo Rata mutuo
€ 1.456 / mese
Spese annue Spese annue
€ 0
Proponi il tuo prezzoProponi il tuo prezzo

Classe Energetica

A1
A1
A1
A1
A1
A1
A1
A1
A1
Anno di costruzione:
2026
Riscaldamento:
Autonomo
Tipo impianto:
A pavimento
Tipo alimentazione:
Altro

Prezzo ridotto di €1 (5%%)

Ti interessa visionare l'immobile?

Fissa un appuntamento  Fissa un appuntamento

Richiedi informazioni

Clicca su Leggi per aprire l'informativa
* Questi campi sono obbligatori

Calcola il tuo mutuo

Semplice e senza impegno
Anticipo

( % )
Mutuo

( % )

pochi semplici passi

inserisci i tuoi dati
Questionario completato
Grazie per aver richiesto un appuntamento senza impegno con un nostro Consulente del Credito e Assicurativo.

Hai inserito correttamente tutti i dati necessari e a breve riceverai una e-mail con un link da convalidare per inviare i tuoi dati.
Affiliato
Myricae Mare Srl
Viale delle Nazioni, 100 47043 Gatteo (FC)

Il nostro staff


  • Lorenzo Rinaldi
    Affiliato

  • Vanessa Magnani
    Coordinatrice

  • Nicole Cucchi
    Coordinatrice

  • Samuele Garattoni
    Affiliato

  • Florida Hoxha
    Collaboratrice

  • Nicolò Lombardi
    Collaboratore

  • Alissia Tosi
    Collaboratrice
Viale delle Nazioni, 100 47043 Gatteo (FC)
Zona: Gatteo Mare-Villamarina-Valverde-Savignano Mare-Capanni-Cesenatico
Mostra su mappa
Orari: lunedì - venerdì 09.00/13.00 - 13.00/19.30; sabato 09.00/13.00 - 15.00/18.00
Affiliato
Myricae Mare Srl
Viale delle Nazioni, 100 47043 Gatteo (FC)

2026 Tecnocasa Franchising S.p.A. - P. IVA 08365160152 - Via Monte Bianco 60/A 20089 Rozzano (MI). Ogni agenzia ha un proprio titolare ed è autonoma. Privacy policy | Policy utilizzo | Cookie policy